Электромагнитные клапаны типа ЭМКГ8 предназначены для управления потоками жидкости и газа в системах автоматического розжига, регулирования и защиты паровых и водогрейных котельных агрегатов, а также в пневматических и гидравлических системах различного назначения.
ОСНОВНЫЕ МОДИФИКАЦИИ И ТЕХНИЧЕСКИЕ ХАРАКТЕРИСТИКИ
Рабочая среда: природный газ, пропан-бутан, воздух, азот, дизельное топливо, керосин, вода мягкая (жесткость не выше 1,0 мг-экв/л), пар, мазут.
Температура рабочей среды: +20...+1600С.
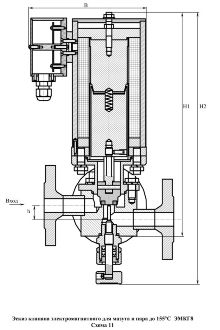
Тип клапана | Ду, мм | Ру, ати | Потребляемая мощность, Вт пусковая / рабочая | Габариты, мм | h, мм | IP | Присоеди нительные размеры | Особен ности конст рукции | Вес, кг | Схе ма | ||
Н1 | Н2 | В | ||||||||||
ЭМКГ8-15-40-с298-10 | 15 | 40 | 500/50 | 295 | 355 | 165 | 18 | 40 | 1/2" | имеется ручной привод и отверстие для слива и рециркуляции мазута | 20,0 | 10 |
ЭМКГ8-15-40-с298-11 | 15 | 40 | 500/50 | 295 | 335 | 165 | 18 | 40 | фланцы по | 25,0 | 11 | |
ЭМКГ8-20-25-с324-10 | 20 | 25 | 500/50 | 300 | 365 | 165 | 18 | 40 | 3/4" | 20,0 | 10 | |
ЭМКГ8-20-25-с324-11 | 25 | 25 | 500/50 | 300 | 375 | 165 | 18 | 40 | фланцы по | 25,0 | 11 | |
ЭМКГ8-25-10-с331-10 | 25 | 10 | 500/50 | 320 | 385 | 165 | 28 | 40 | 1" | 20,0 | 10 | |
ЭМКГ8-25-10-с331-11 | 25 | 10 | 500/50 | 320 | 385 | 165 | 28 | 40 | фланцы по | 25,0 | 11 | |
| Схема 10 | Схема 11 |
![]() | ![]() |
![]() | ![]() |
ПРИМЕР ЗАКАЗА
Электромагнитный клапан ЭМКГ8-15-40-220-с298-10
УСЛОВНЫЕ ОБОЗНАЧЕНИЯ
ЭМКГ8 - тип клапана.
Цифра "15" - диаметр условного прохода в мм.
Цифра "40" - условное давление (избыточное) в ати.
Цифра "220" - напряжение питания в В.
Литера "с" - материал корпуса углеродистая сталь 20.
Цифра "298" - номер модели.
Цифра "10" - муфтовый.
Электромагнитные клапаны могут выпускаться в следующих вариантах:
- для напряжения питания ~220В (50гц)/~127В (50Гц)/=24В/~24В (50Гц),
- из материала корпуса, необходимого заказчику,
- по степени защиты в исполнении IP40,
- укомплектованные законцовками для монтажа на трубопроводы.
ДОСТАВКА
Вы можете выбрать любой наиболее удобный способ из перечисленных ниже:
Доставка до терминала ТК «Деловые линии» осуществляется нами бесплатно.
ОПЛАТА
Мы принимаем оплату:
Цены на поставляемые нами товар всегда ниже, чем у наших конкурентов.
Условия гарантийного обслуживания
Гарантия не распространяется на ущерб, причиненный другому оборудованию, работающему вместе с данным изделием.
Центр измерительной техники «Эталонприбор» располагает своим собственным ремонтным сервисом, где Вы можете получить услуги по: ремонту, наладке, калибровке, гарантийному и послегарантийному обслуживанию измерительного оборудования, как приобретенного у нас, так и у других поставщиков. Сервис работает на основе лицензии, выданной Ростехрегулированием РФ.
