Шкаф ШПВ - это комплектующая часть пульта бурильщика ПБВ-ЭП и поставляется вместе с ним.
| Параметры | Значение |
| Величина питающего напряжения нагревательного элемента | 220 В |
| Снижение давления первым редуктором | 2.5 кПа |
| Величина снижения давления вторым редуктором | 60 кПа |
| Длительность прогрева шкафа | до 10 мин |
| Маркировка взрывозащиты | 2ЕxemllT4 |
| Показатель пыле, влагозащищенности | IP54 |
Шкаф ШПВ состоит из:

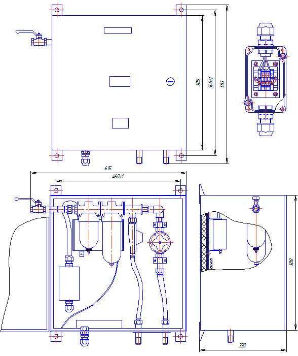
Габаритная схема шкафа подготовки воздуха ШПВ
В фильтрах очистки (влагоотделителе и осушителе) имеется устройство для отвода конденсата. Отвод конденсата является полуавтоматическим, обеспечивающим сброс конденсата при прекращении подачи сжатого воздуха (падение давления в стакане для сбора конденсата ниже минимального рабочего). Устройство для полуавтоматического отвода конденсата обеспечивает возможность ручного отвода. Для слива конденсата предусмотрена специальная емкость, из которой необходимо периодически удалять конденсат.
Для обогрева ШПВ в зимнее время, чтобы не замерзал конденсат, в корпусе установлен взрывозащищенный нагреватель. Конструктивно нагреватель представляет собой электротехническое изделие, состоящее из изолированного нагревательного элемента, заключенного между двумя радиаторами, механически стянутыми между собой и залитого компаундом по плоскости разъема и торцевой поверхности.
Принцип работы нагревателя заключается в выделении тепла при прохождении электрического тока по нагревательному элементу. Электрической схемой предусмотрена защита от токов короткого замыкания (два предохранителя, встроенные в корпус нагревателя).
В нагреватель встроены термовыключатели, отключающие от электрической сети при температуре на поверхности нагревателя свыше 100 ºС.
Кабель с проводами от нагревателя вводится в коробку клеммную, к которой подводится кабель питания нагревателя.
Коробка клеммная состоит из оболочки, образованной корпусом и крышкой, соединенных друг с другом винтами. В корпусе установлены две клеммы на два проводника каждая. Коробка укомплектована двумя кабельными вводами для подвода питания к нагревателю.
Пульт бурильщика имеет четыре патрубка с резьбой 1/2'', расположенных на боковых стенках: на левой – для подвода воздуха давлением 0,0025 МПа и 0,06 МПа; на правой – для выброса в атмосферу воздуха при предпусковой продувке и для подключения датчика избыточного давления напоромера. Патрубки для подвода и отвода воздуха при предпусковой продувке оборудованы запорными вентилями.
Для измерения избыточного давления внутри пульта бурильщика применяется напоромер НСП16 с релейным выходным сигналом. Подключение напоромера осуществляется отдельным кабелем. Сигнал о наличии избыточного давления воздуха внутри корпуса пульта бурильщика (уровень напряжения 24 В постоянного тока) выходит на внешнее устройство.
Регулирование температуры внутри пульта бурильщика осуществляется включением и отключением питания обогревателя с помощью внешних устройств по сигналу дискретного датчика температуры, расположенного внутри пульта бурильщика. При включении питания пульта бурильщика вначале будет включен обогреватель, затем при достижении температуры плюс 10 °С и прогреве аппаратуры в течение 30 мин, подается питание 220 В переменного тока на блоки аппаратуры.
Включение пульта бурильщика происходит в следующей последовательности:
Включение обогрева и питания пульта бурильщика возможно в ручном режиме с контейнера комплектного тиристорного устройства.
Шкаф подготовки воздуха имеет:
Уровень и виды взрывозащиты ШПВ достигаются следующими мерами и средствами:
Изоляционные части блока зажимов выполнены из трекингостойких материалов. Пути утечки и электрические зазоры соответствуют значениям, нормируемым ГОСТ Р 51330.8-99, ГОСТ Р 51330.20-99.
Дефекты в затвердевшем компаунде в виде раковин, трещин, воздушных пузырей, отслоений от проводов и залитых деталей не допускаются;
ДОСТАВКА
Вы можете выбрать любой наиболее удобный способ из перечисленных ниже:
Доставка до терминала ТК «Деловые линии» осуществляется нами бесплатно.
ОПЛАТА
Мы принимаем оплату:
Цены на поставляемые нами товар всегда ниже, чем у наших конкурентов.
Условия гарантийного обслуживания
Гарантия не распространяется на ущерб, причиненный другому оборудованию, работающему вместе с данным изделием.
Центр измерительной техники «Эталонприбор» располагает своим собственным ремонтным сервисом, где Вы можете получить услуги по: ремонту, наладке, калибровке, гарантийному и послегарантийному обслуживанию измерительного оборудования, как приобретенного у нас, так и у других поставщиков. Сервис работает на основе лицензии, выданной Ростехрегулированием РФ.
