Трансформатор осветительный рудничный ТОР-1,6 предназначен для питания напряжением 36 В осветительных сетей шахт, рудников и обогатительных фабрик.
| Номинальное напряжение первичной цепи, В | 380, 380/660 |
| Номинальное напряжение вторичной цепи, В | 36 |
| Номинальный ток первичной обмотки, А | 2,0 |
| Номинальный ток нагрузки, А | 25 |
| Номинальная мощность, кВ·А | 1,6 |
| Частота сети, Гц | 50 |
Трансформаторы предназначены для эксплуатации на предприятиях горнорудной промышленности, не опасных по газу и пыли, и должны иметь маркировку РН2.
Климатическое исполнение — УХЛ2 по ГОСТ 15150-69.
Степень защиты IP54 по ГОСТ 14254-96.
Трансформатор предназначен для эксплуатации в следующих условиях:
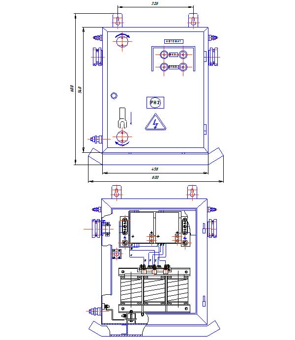
Трансформаторы ТОР конструктивно выполняются в металлическом корпусе, в котором установлены силовой трансформатор, вводной и выводной автоматические выключатели, опорные изоляторы и концевой выключатель двери. На двери установлены рукоятки включения и отключения автоматических выключателей и сигнализация о подаче напряжения.
С правой и с левой сторон корпуса установлены кабельные вводы, вводной автоматический выключатель, выполненный со встроенным независимым расцепителем, в цепь которого введен контакт концевого выключателя, сблокированного с дверью. При открывании двери вводной автоматический выключатель снимает напряжение с трансформатора.
Включение трансформатора осуществляется при закрытой двери путем нажатия кнопки включения.

Габаритные и установочные размеры трансформатора типа ТОР
ДОСТАВКА
Вы можете выбрать любой наиболее удобный способ из перечисленных ниже:
Доставка до терминала ТК «Деловые линии» осуществляется нами бесплатно.
ОПЛАТА
Мы принимаем оплату:
Цены на поставляемые нами товар всегда ниже, чем у наших конкурентов.
Условия гарантийного обслуживания
Гарантия не распространяется на ущерб, причиненный другому оборудованию, работающему вместе с данным изделием.
Центр измерительной техники «Эталонприбор» располагает своим собственным ремонтным сервисом, где Вы можете получить услуги по: ремонту, наладке, калибровке, гарантийному и послегарантийному обслуживанию измерительного оборудования, как приобретенного у нас, так и у других поставщиков. Сервис работает на основе лицензии, выданной Ростехрегулированием РФ.
