Фильтр осадочный фланцевый ZETKAMA 821A предназначен для работы с промышленной холодной и горячей водой, паром, химически нейтральными агентами.
Материал корпуса | серый чугун |
Номинальное давление, МПа | 1,6 |
Номинальный диаметр, мм | 15-400 (DN) |
Максимальная температура, °C | 300 |

Рисунок - конструктивная схема фильтра
| Наименование | Материал | |
| 1 Корпус | EN-GJL-250 JL1040 | |
| 2 Крышка | EN-GJL-250 JL1040 | |
| 3 Сетка | X5CrNi18 - 10-1.4301 | |
| 3.1 Прокладка | X5CrNi18-10 1.4301 с DN > 150 | |
| 4 Шпилька | 8.8 A2A | |
| 5 Гайка | 8 - A2A | |
| 6 Шток | C35E | |
| 7 Прокладка | A4 1.4571 | |
| 8 Прокладка крышки | CrNiSt - графит | |
| 9 Пробка | C35E | |

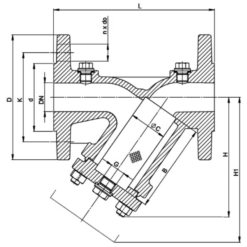
Схема - габаритные размеры фильтра
| DN | L, мм | D, мм | d, мм | K, мм | nxdo | H, мм |
| 15 | 130 | 95 | 46 | 65 | 4х14 | 90 |
| 20 | 150 | 105 | 56 | 75 | 4х14 | 100 |
| 25 | 160 | 115 | 65 | 85 | 4х14 | 115 |
| 32 | 180 | 140 | 76 | 100 | 4х19 | 135 |
| 40 | 200 | 150 | 84 | 110 | 4х19 | 150 |
| 50 | 230 | 165 | 99 | 125 | 4х19 | 160 |
| 65 | 290 | 185 | 118 | 145 | 4х19 | 180 |
| 80 | 310 | 200 | 132 | 160 | 8х19 | 215 |
| 100 | 350 | 220 | 156 | 180 | 8х19 | 240 |
| 125 | 400 | 250 | 184 | 210 | 8х19 | 280 |
| 150 | 480 | 285 | 211 | 240 | 8х23 | 330 |
| 200 | 600 | 340 | 266 | 295 | 12х23 | 405 |
| 250 | 730 | 405 | 319 | 355 | 12х28 | 540 |
| DN | H1, мм | Kvs, м /ч | C, мм | B, мм | Масса, кг |
| 15 | 135 | 5,7 | 23 | 56 | 2,6 |
| 20 | 160 | 10,4 | 28 | 68 | 3,0 |
| 25 | 180 | 16,4 | 36 | 82 | 4,3 |
| 32 | 215 | 27,3 | 42 | 98 | 6,8 |
| 40 | 240 | 42 | 50 | 114 | 8,8 |
| 50 | 250 | 64,7 | 61,5 | 119 | 11 |
| 65 | 285 | 98 | 78,5 | 134 | 14,6 |
| 80 | 330 | 149 | 89,5 | 149 | 18,6 |
| 100 | 395 | 234 | 109,5 | 169 | 27 |
| 125 | 455 | 376 | 137,5 | 199 | 38,5 |
| 150 | 525 | 454 | 160 | 224 | 54,5 |
| 200 | 650 | 853 | 210 | 284 | 110 |
| 250 | 870 | 1104 | 258 | 434 | 165 |
ДОСТАВКА
Вы можете выбрать любой наиболее удобный способ из перечисленных ниже:
Доставка до терминала ТК «Деловые линии» осуществляется нами бесплатно.
ОПЛАТА
Мы принимаем оплату:
Цены на поставляемые нами товар всегда ниже, чем у наших конкурентов.
Условия гарантийного обслуживания
Гарантия не распространяется на ущерб, причиненный другому оборудованию, работающему вместе с данным изделием.
Центр измерительной техники «Эталонприбор» располагает своим собственным ремонтным сервисом, где Вы можете получить услуги по: ремонту, наладке, калибровке, гарантийному и послегарантийному обслуживанию измерительного оборудования, как приобретенного у нас, так и у других поставщиков. Сервис работает на основе лицензии, выданной Ростехрегулированием РФ.
