Клапан поплавковый фланцевый ZETKAMA 272A предназначен для регулировки уровня жидкости в емкости. По достижению требуемого уровня среды в емкости клапан автоматически закроется и останется в таком положении пока не упадет уровень воды.
Материал корпуса | серый чугун |
Номинальное давление, МПа | 1,0 |
Номинальный диаметр, мм | 25-80 (DN) |
Максимальная температура, °C | 120 |

Схема №1 - конструкция клапана (исполнение 1)

Схема №2 - конструкция клапана (исполнение 2)

Схема №3 - конструкция клапана (исполнение 3)

Схема №4 - конструкция клапана (исполнение 4)
| 1.1 Корпус | EN-GJS-250 JL1040 |
| 1.2 Кольцо корпуса | X12Cr13 1.4006 |
| 3 Крышка | EN-GJL-250 JL 1040 |
| 4 Диск | X20Cr13 1.4021 |
| 5 Прокладка диска | EPDM |
| 6 Держатель прокладки | X20Cr13 1.4021 |
| 7 Поршневые втулки | CuZn39Pb |
| 8 Штурвал | X20Cr13 1.4021 |
| 9 Вилка штока | S35JR оцинкованная сталь |
| 10 Рукав шпинделя | CuZn39Pb |
| 11 Рычаг | S35JR оцинкованная сталь |
| 12 Соединитель | S35JR оцинкованная сталь |
| 13 Шток | S35JR оцинкованная сталь |
| 14 Поплавок | S35JR оцинкованная сталь |
| 15,16 Штифт | X20Cr13 1.4021 |
| 17,18 Уплотнительное кольцо | EPDM |
| 19 Прямой штифт | углеродистая сталь |
| 20 Редуктор | ковкий чугун |
| 21 Шестигранный винт | 8.8 A2A |
| 22 Шайба | углеродистая сталь |
| 23 Шплинт | X5CrNi18-10 1.4301 |
| 24 Гайка | 8.8 A2A |
| 25 Болт | A2-70 |
| 26 Шестигранный болт | 8.8 A2A |

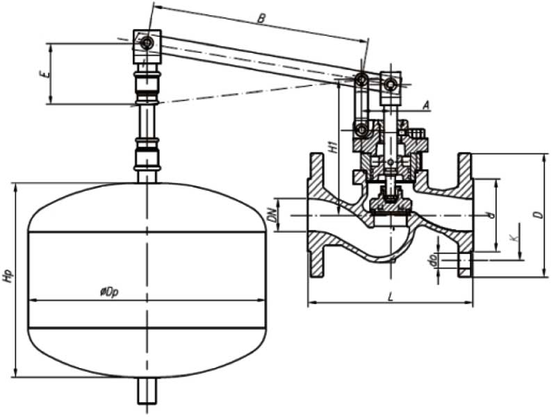
Схема №5 - габаритные размеры клапана
| DN | PN 1.0 МПа | ||||||
| D | L | K | d | do | n | A | |
| мм | |||||||
| 25 | 115 | 160 | 85 | 65 | 14 | 4 | 30 |
| 32 | 140 | 180 | 100 | 75 | 19 | 4 | 30 |
| 40 | 150 | 200 | 110 | 84 | 19 | 4 | 35 |
| 50 | 165 | 230 | 125 | 99 | 19 | 4 | 35 |
| 65 | 185 | 290 | 145 | 118 | 19 | 4 | 45 |
| 80 | 200 | 310 | 160 | 132 | 19 | 8 | 55 |
| 100 | 220 | 350 | 180 | 156 | 19 | 8 | 70 |
| 125 | 250 | 400 | 210 | 184 | 19 | 8 | 85 |
| 150 | 285 | 480 | 240 | 211 | 23 | 8 | 100 |
| 200 | 340 | 600 | 295 | 266 | 23 | 8 | 135 |
| DN | PN 1.0 МПа | ||||||
| B | E | H1 | Hp | Dp | Kvs | Масса | |
| мм | м3/час | кг | |||||
| 25 | 700 | - | 146 | 220 | 270 | 13 | 9,5 |
| 32 | 700 | - | 155 | 220 | 270 | 17.5 | 10,7 |
| 40 | 700 | - | 166 | 200 | 350 | 25 | 17 |
| 50 | 700 | - | 175 | 200 | 350 | 40 | 20 |
| 65 | 700 | - | 221 | 250 | 400 | 62 | 26 |
| 80 | 800 | - | 249 | 250 | 400 | 72 | 32,5 |
| 100 | 900 | 360 | 271 | 300 | 400 | 104 | 47 |
| 125 | 1100 | 440 | 317 | 300 | 500 | 156 | 69 |
| 150 | 1200 | 480 | 361 | 300 | 500 | 213 | 98 |
| 200 | 1450 | 590 | 437 | 400 | 500 | 360 | 149 |
ДОСТАВКА
Вы можете выбрать любой наиболее удобный способ из перечисленных ниже:
Доставка до терминала ТК «Деловые линии» осуществляется нами бесплатно.
ОПЛАТА
Мы принимаем оплату:
Цены на поставляемые нами товар всегда ниже, чем у наших конкурентов.
Условия гарантийного обслуживания
Гарантия не распространяется на ущерб, причиненный другому оборудованию, работающему вместе с данным изделием.
Центр измерительной техники «Эталонприбор» располагает своим собственным ремонтным сервисом, где Вы можете получить услуги по: ремонту, наладке, калибровке, гарантийному и послегарантийному обслуживанию измерительного оборудования, как приобретенного у нас, так и у других поставщиков. Сервис работает на основе лицензии, выданной Ростехрегулированием РФ.
