Кран шаровый стальной фланцевый BROEN Ballomax стандартнопроходной предназначен для перекрытия потока рабочей жидкости.
| Параметры | Значения |
| Рабочая среда | вода, воздух, пар, масло и другие неагрессивные жидкости |
| Материал корпуса | сталь |
| Номинальное давление | 1,6; 4,0 МПа |
| Диаметр | 15 - 200 мм |
| Температура рабочей среды | от -20 до +200°С краны для пара +250°С |
Краны шаровые стальные фланцевые стандартнопроходные широко используются в системах теплоэнергетики и кондиционирования воздуха, а также в промышленных установках.

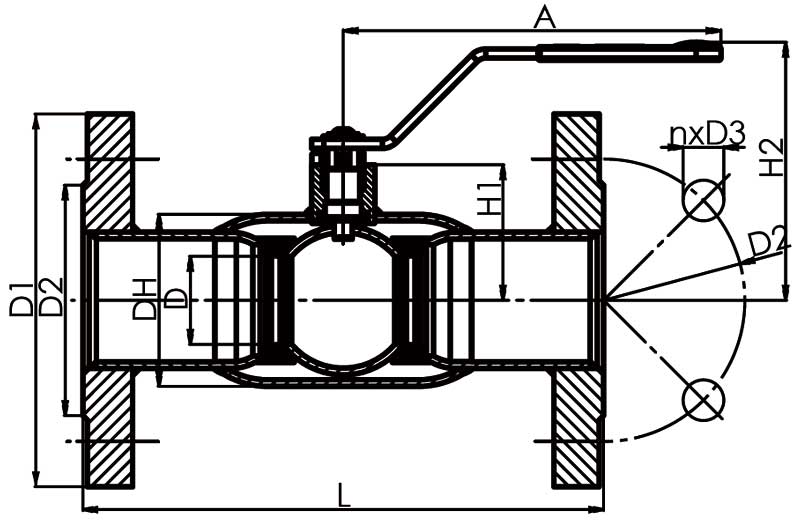
Схема - габаритные размеры крана (DN 15-50)
| DN | PN | D | L | D1 | D2 | DH | A | |
| мм | МПа | мм | ||||||
| 15 | 4,0 | 10 | 130 | 95 | 65 | 38 | 141 | |
| 20 | 4,0 | 15 | 150 | 105 | 75 | 38 | 141 | |
| 25 | 4,0 | 20 | 160 | 115 | 85 | 51 | 141 | |
| 32 | 4,0 | 25 | 180 | 140 | 100 | 57 | 141 | |
| 40 | 4,0 | 32 | 200 | 150 | 110 | 76 | 167 | |
| 50 | 4,0 | 40 | 230 | 165 | 125 | 76 | 167 | |
| DN | D3 | n | H1 | H2 | Масса | Kv | |
| мм | мм | кг | м /ч | ||||
| 15 | 14 | 4 | 30,3 | 81,4 | 1,62 | 7 | |
| 20 | 14 | 4 | 33,8 | 84,9 | 2,21 | 15 | |
| 25 | 14 | 4 | 37,1 | 88,2 | 2,55 | 27 | |
| 32 | 18 | 4 | 42,2 | 93,3 | 4,03 | 40 | |
| 40 | 18 | 4 | 56,2 | 108,0 | 5,08 | 69 | |
| 50 | 18 | 4 | 60,0 | 114,2 | 7,24 | 110 | |

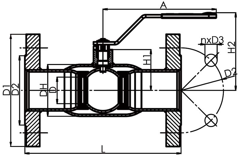
Схема - габаритные размеры крана (DN 65-200)
| DN | PN | D | L | D | D2 | А | |
| мм | МПа | мм | |||||
| 65 | 1,6 | 50 | 270 | 185 | 145 | 275 | |
| 80 | 1,6 | 65 | 280 | 200 | 160 | 275 | |
| 100 | 1,6 | 80 | 300 | 220 | 180 | 365 | |
| 125 | 1,6 | 100 | 325 | 250 | 210 | 365 | |
| 150 | 1,6 | 125 | 350 | 285 | 240 | 650 | |
| 200 | 1,6 | 150 | 400 | 340 | 295 | 900 | |
| 65* | 2,5 | 50 | 290 | 185 | 145 | 275 | |
| 80* | 2,5 | 65 | 280 | 200 | 160 | 275 | |
| 100* | 2,5 | 80 | 300 | 235 | 190 | 365 | |
| 125* | 2,5 | 100 | 325 | 270 | 220 | 365 | |
| 150* | 2,5 | 125 | 350 | 300 | 250 | 650 | |
| 200* | 2,5 | 150 | 400 | 360 | 310 | 900 | |
| DN | H1 | H2 | n | d | Масса | Kv | |
| мм | мм | кг | м /ч | ||||
| 65 | 66,0 | 144 | 8 | 18 | 9,9 | 168 | |
| 80 | 66,0 | 154 | 8 | 18 1 | 3,2 | 288 | |
| 100 | 81,0 | 192 | 8 | 18 | 18,3 | 417 | |
| 125 | 91,0 | 218 | 8 | 18 | 24,4 | 699 | |
| 150 | 90,0 | 242 | 8 | 22 | 35,2 | 1046 | |
| 200 | 155,5 | 326 | 12 | 22 | 58,0 | 1500 | |
| 65* | 66,0 | 144 | 8 | 18 | 10,0 | 168 | |
| 80* | 66,0 | 154 | 8 | 18 | 13,2 | 288 | |
| 100* | 81,0 | 192 | 8 | 22 | 19,2 | 417 | |
| 125* | 91,0 | 218 | 8 | 26 | 27,8 | 699 | |
| 150* | 90,0 | 242 | 8 | 26 | 39,7 | 1046 | |
| 200* | 155,5 | 326 | 12 | 26 | 63,5 | 1500 | |
ДОСТАВКА
Вы можете выбрать любой наиболее удобный способ из перечисленных ниже:
Доставка до терминала ТК «Деловые линии» осуществляется нами бесплатно.
ОПЛАТА
Мы принимаем оплату:
Цены на поставляемые нами товар всегда ниже, чем у наших конкурентов.
Условия гарантийного обслуживания
Гарантия не распространяется на ущерб, причиненный другому оборудованию, работающему вместе с данным изделием.
Центр измерительной техники «Эталонприбор» располагает своим собственным ремонтным сервисом, где Вы можете получить услуги по: ремонту, наладке, калибровке, гарантийному и послегарантийному обслуживанию измерительного оборудования, как приобретенного у нас, так и у других поставщиков. Сервис работает на основе лицензии, выданной Ростехрегулированием РФ.
