Пневмоблок УФ 90084-006 предназначен для автоматического управления подачей среды от емкостей хранения к потребителям.
| Параметры | Значение |
| Рабочая среда | продукты разложения гидразина, смесь газов азот, водород, аммиак |
| Давление рабочего тела на входе, МПа (кгс/см2) | 0,4 -2,0 (4,0 -20,0) |
| Давление на выходе (кгс/см2) | 0,25 (2,5) |
| Температура рабочей среды и окружающей конструкции, С | от -50 до +50 |
| Электропитание изделия осущевсляется постоянным током, напряжением,В | 27 |
| Коммутируемый ток, А | не более 0,5 |
| Расход кг/час | 1,4-5,5 |
| Масса, кг | 2,4 |
Пневмоблок имеет двухпозиционный электропневмоклапан с дистанционным управлением путем подачи электрического импульса определенной величины. Возможно сохранения положения "открыт" или "закрыт" после снятия электрического импульса.

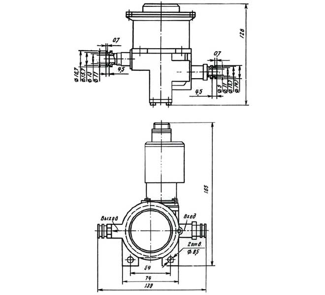
Схема - габаритные размеры пневмоблока
Пневмоблок оснащен сигнализатором положения (открыт, закрыт). Также имеет регулятор давления, он служит для поддержки на выходе из блока давления рабочей среды в определенных пределах.При этом наблюдаются минимальные утечки рабочей среды по затворам и окружающую среду.
ДОСТАВКА
Вы можете выбрать любой наиболее удобный способ из перечисленных ниже:
Доставка до терминала ТК «Деловые линии» осуществляется нами бесплатно.
ОПЛАТА
Мы принимаем оплату:
Цены на поставляемые нами товар всегда ниже, чем у наших конкурентов.
Условия гарантийного обслуживания
Гарантия не распространяется на ущерб, причиненный другому оборудованию, работающему вместе с данным изделием.
Центр измерительной техники «Эталонприбор» располагает своим собственным ремонтным сервисом, где Вы можете получить услуги по: ремонту, наладке, калибровке, гарантийному и послегарантийному обслуживанию измерительного оборудования, как приобретенного у нас, так и у других поставщиков. Сервис работает на основе лицензии, выданной Ростехрегулированием РФ.
