Стойка К314 (кабельная напольная) предназначена для крепления светильников и аппаратов.
Стойки применяются с С=образными профилями К108.
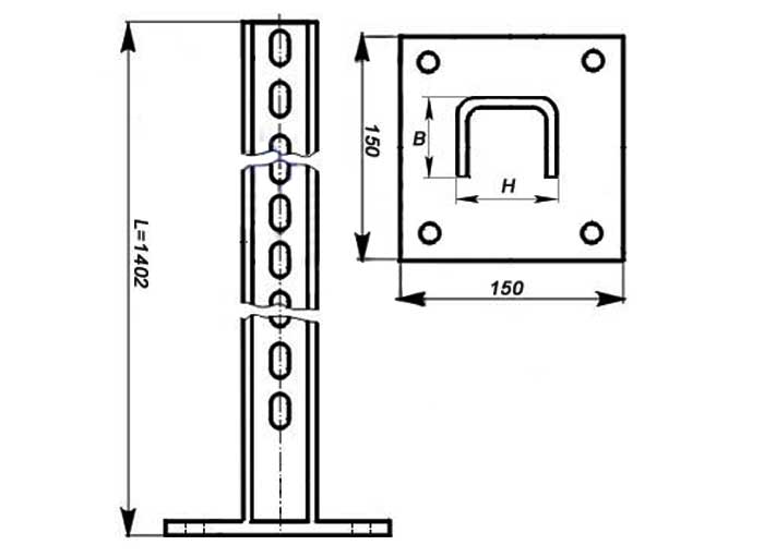
Виды климатических исполнений | У3, УТ1,5, УТ1,5гц |
B, мм | 41 |
H, мм | 41 |
Толщина металла, мм | 2 |
Масса, кг | 3,8 |

Габаритная схема
К314У3. Стойка изготовлена для умеренного макроклиматического района. Эксплуатация в крытых помещениях без регулирования температурных условий с естественной вентиляцией (Категория размещения 3). Рабочие температуры от -45 до +40С°. Изделие изготовлено из углеродистой стали покрытой грунтом ГФ-021.
К314цУТ1,5. Стойка изготовлена для умеренного и тропического макроклиматических районов. Эксплуатация на открытом воздухе, под навесом и в крытых помещениях без регулирования температурных условий с естественной вентиляцией (Категория размещения 1) так и в помещениях с повышенной влажностью (Категория размещения 5). Рабочие температуры от -45 до +45С°. Изделие изготовлено из оцинкованного листа по ГОСТ 14918.
К3141,5гц. Стойка изготовлена для умеренного и тропического макроклиматических районов. Эксплуатация на открытом воздухе, под навесом и в крытых помещениях без регулирования температурных условий с естественной вентиляцией (Категория размещения 1) так и в помещениях с повышенной влажностью (Категория размещения 5). Рабочие температуры от -45 до +45С°. Стойка изготовлена из углеродистой стали и покрыта «горячим цинком» по ГОСТ 9.307-89.
ДОСТАВКА
Вы можете выбрать любой наиболее удобный способ из перечисленных ниже:
Доставка до терминала ТК «Деловые линии» осуществляется нами бесплатно.
ОПЛАТА
Мы принимаем оплату:
Цены на поставляемые нами товар всегда ниже, чем у наших конкурентов.
Условия гарантийного обслуживания
Гарантия не распространяется на ущерб, причиненный другому оборудованию, работающему вместе с данным изделием.
Центр измерительной техники «Эталонприбор» располагает своим собственным ремонтным сервисом, где Вы можете получить услуги по: ремонту, наладке, калибровке, гарантийному и послегарантийному обслуживанию измерительного оборудования, как приобретенного у нас, так и у других поставщиков. Сервис работает на основе лицензии, выданной Ростехрегулированием РФ.
