Регулятор давления УФ 90154-063.00.00 предназначен для регулирования давления воздуха "после себя" в бортовых системах самолета, в том числе в воздушно-тепловых противообледенительных системах.
| Диаметр подсоединительных трубопроводов, мм | 63 |
| Давление (абсолютное) на входе, МПа (кгс/см2) | 0,098-0,98 (1,0-10) |
| Давление (абсолютное) на выходе из регулятора, где: K=3,5; PH - давление окружающей среды | Pвых=K·PH |
| Расход воздуха в наземных условиях, кг/ч | 900-1800 |
| Температура воздуха на воде,оС | 160-310 |
| Утечка воздуха в атмосферу в наземных условиях при давлении на входе 7 кгс/см2 и температуре 10-30оС, кг/ч | 5 |
Питание электрических цепей сигнализаторов обеспечивается постоянным током с напряжением, В Потребляемый ток, А | 27 0,15 |
| Установочное положение регулятора на трубопроводе | не регламентируется |
| Окружающая среда - атмосферный воздух с давлением, МПа (кгс/см2) | 0,1080-0,0226 (1,10-0,23) |
| Температура окружающей среды, оС | от минус 60 до плюс 100 |
| Масса, кг | 4,0 |
Регулятор представляет собой пневматическую сиситему автоматического регулирования выходного давления с высокой точностьюи коррекцией его величины относительно изменяющегося давления окружающей среды.
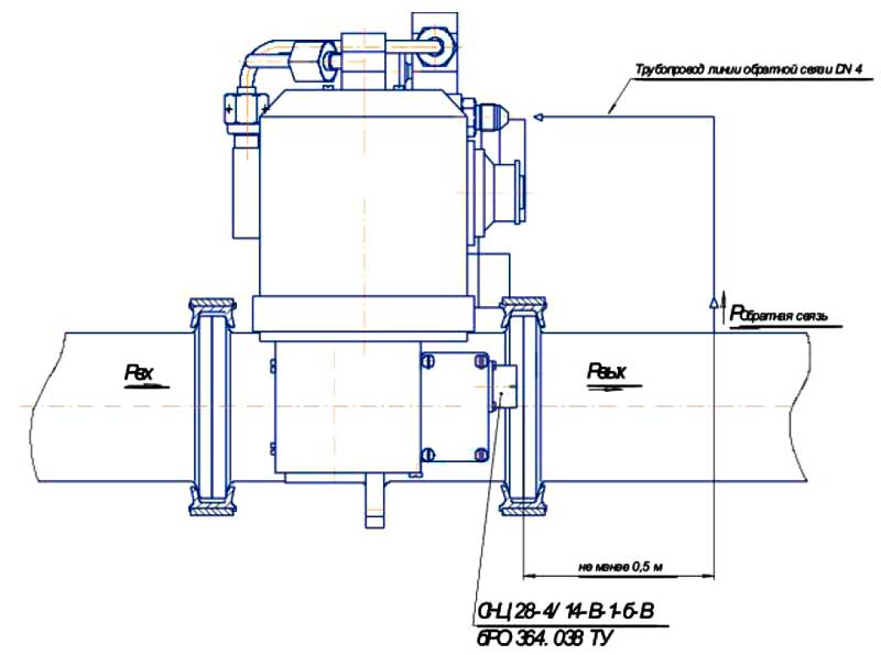
Регулятор выполнен в виде единого блока, основной корпус которого имеет фланцевое присоединение к трубопроводам DN 63 бортовой воздушной системы с помощью специального хомута.
Присоединение линии обратной связи осуществляется с помощью трубопровода DN 4. Предусмотрено дополнительное крепление основного корпуса.
Рабочий орган исполнительного механизма имеет сигнализацию положения "Закрыто" и "Регулирование". Контакты сигнализатора положения выделены на специальный разъем.
При отсутствии давления на входе, регулятор закрыт.

Схема установки регулятора
ДОСТАВКА
Вы можете выбрать любой наиболее удобный способ из перечисленных ниже:
Доставка до терминала ТК «Деловые линии» осуществляется нами бесплатно.
ОПЛАТА
Мы принимаем оплату:
Цены на поставляемые нами товар всегда ниже, чем у наших конкурентов.
Условия гарантийного обслуживания
Гарантия не распространяется на ущерб, причиненный другому оборудованию, работающему вместе с данным изделием.
Центр измерительной техники «Эталонприбор» располагает своим собственным ремонтным сервисом, где Вы можете получить услуги по: ремонту, наладке, калибровке, гарантийному и послегарантийному обслуживанию измерительного оборудования, как приобретенного у нас, так и у других поставщиков. Сервис работает на основе лицензии, выданной Ростехрегулированием РФ.
