Блоки форсированного управления БУФ-М и БФВ предназначены для форсированного управления электромагнитными приводами реверсоров (ПИЖЦ.641379.004) совместно с вакуумными контакторами типа КМ17Р для пускателей типа ПВР-250/315Р (БУФ-М) и вакуумными контакторами серии КМ17Р (БФВ).
| Номинальное напряжение питания блока, В | 8 / 42 (36) |
| Номинальная частота напряжения питания блока, Гц | 50 |
| Диапазон изменения рабочего напряжения от номинального | от 85% до 110% |
| Выходное напряжение постоянного тока (пульсирующее), В, не более | |
| в форсированном режиме | 42 (36) |
| в режиме удержания | 8 |
| Допустимый ток нагрузки, А, не более | |
| в форсированном режиме | 12 |
| в режиме удержания | 1,5 |
| Электрические схемы блоков обеспечивают: | |
| форсированное включение контактора; | |
| импульсную подачу напряжения на катушку реверсора; | |
| автоматическое переключение катушки контактора в режиме удержания; | |
| запрет на включение контактора при нерабочем положении реверсора. | |
| Потребляемая блоком мощность, В·А, не более | 5 |
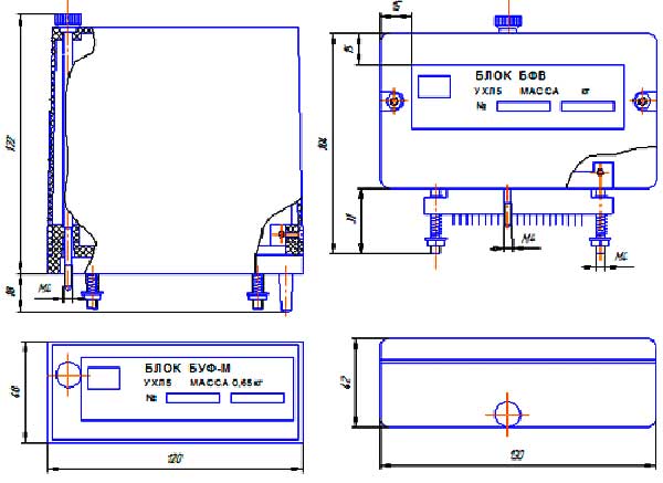
| Габаритные размеры блоков, мм | 122x130x42 |
| Масса блока, кг | 0,65 |
Климатическое исполнение — УХЛ5 по ГОСТ 15150-69.
Степень защиты корпуса блока IP30.
Блоки предназначены для эксплуатации в следующих условиях:
Блоки состоят из пластмассового корпуса, в котором размещена печатная плата с элементами и вилка соединителя.
На основании имеется ключ для безошибочной установки блока на своё место в аппарате.
Работа блоков основана на кратковременной подаче форсированного напряжения 42 (36) В на катушки контакторов и реверсоров с последующим переводом их питания на напряжение 8 В постоянного тока.

Габаритные размеры блоков БУФ-М(а) и БФВ(б)
ДОСТАВКА
Вы можете выбрать любой наиболее удобный способ из перечисленных ниже:
Доставка до терминала ТК «Деловые линии» осуществляется нами бесплатно.
ОПЛАТА
Мы принимаем оплату:
Цены на поставляемые нами товар всегда ниже, чем у наших конкурентов.
Условия гарантийного обслуживания
Гарантия не распространяется на ущерб, причиненный другому оборудованию, работающему вместе с данным изделием.
Центр измерительной техники «Эталонприбор» располагает своим собственным ремонтным сервисом, где Вы можете получить услуги по: ремонту, наладке, калибровке, гарантийному и послегарантийному обслуживанию измерительного оборудования, как приобретенного у нас, так и у других поставщиков. Сервис работает на основе лицензии, выданной Ростехрегулированием РФ.
