Оповещатели охранные пожарные светозвуковые, наружные «ГНОМ-1» предназначены для подачи световых и звуковых сигналов в системах тревожной сигнализации (охранной, пожарной, газовой и др.) помещений, зданий и сооружений.
| Параметры | Гном-1 | ||
| Напряжение питания, В | 12 + |3| | ||
| Потребляемый ток не более, мА | 200 | ||
| Потребляемый ток по входу "Светодиод" не более, мА | 10 | ||
| Уровень звукового давления (громкий / тихий) не менее, дБ | 95 / 85 | ||
| Габаритные размеры, мм | 125х110х50 | ||
| Масса не более, кг | 0.3 | ||
| Степень защиты оболочки | IP 53 | ||
| Диапазон рабочих температур, °С | от -40 до +55 | ||
Оповещатели предназначены для непрерывной (круглосуточной) работы внутри помещений или на открытом воздухе и обеспечивают выдачу светового и звукового сигналов при нарушении зоны охраняемого объекта, пожаре и др. Оповещатели предназначены для работы с приборами приемо-контрольными (ППК).
Оповещатель выполнен в металлическом корпусе, имеющем основание и кожух. На основании расположены плата с электронными компонентами и клеммные колодки для подключения питания и контактов несанкционированного доступа («тампер»).
Исполнительными элементами оповещателей являются:
Оповещатели «ГНОМ-1» выдают световой и звуковой сигналы при подаче на них напряжения питания. На передней части кожуха оповещателей может быть размещена информационная надпись (например, «ПОЖАР», «ТРЕВОГА», «ГАЗ, НЕ ВХОДЬ» и др. ) выполненная на русском, украинском и (или) английском языках или пиктограмма. Содержание информационной надписи (пиктограммы) оговаривается при заказе продукции.

Рис.1 Схема габаритных размеров оповещателя ГНОМ-1

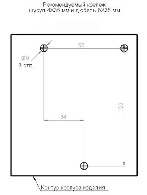
Рис.2 Схема монтажа оповещателя ГНОМ-1
ДОСТАВКА
Вы можете выбрать любой наиболее удобный способ из перечисленных ниже:
Доставка до терминала ТК «Деловые линии» осуществляется нами бесплатно.
ОПЛАТА
Мы принимаем оплату:
Цены на поставляемые нами товар всегда ниже, чем у наших конкурентов.
Условия гарантийного обслуживания
Гарантия не распространяется на ущерб, причиненный другому оборудованию, работающему вместе с данным изделием.
Центр измерительной техники «Эталонприбор» располагает своим собственным ремонтным сервисом, где Вы можете получить услуги по: ремонту, наладке, калибровке, гарантийному и послегарантийному обслуживанию измерительного оборудования, как приобретенного у нас, так и у других поставщиков. Сервис работает на основе лицензии, выданной Ростехрегулированием РФ.
